


An 88-Acre Estate, Superb Views, Planning for Luxury Home & Additional Dwellings in South Devon
Bishopsteignton, South Devon
Guide Price
£4,000,000
BEDROOM
5
BATHROOM
2
RECEPTION
2
CALL NOW
0790741452088.45-Acre Estate – Expansive countryside setting with breathtaking views over the Teign Estuary
Luxury New Build Plans – Approved permission for a 7,631 sq ft contemporary home with panoramic vistas
Striking Architectural Design – Plans feature floor-to-ceiling windows, open-plan living, and estuary-facing terraces.
Additional Facilities – Proposed triple garage, landscaped gardens, and an outdoor swimming pool.
Class Q Conversion – Planning granted for four additional dwellings within existing agricultural buildings.
Superb Connectivity – Easy access to Exeter, A380, M5, and direct rail links to London Paddington.
Coastal & Countryside Appeal – Close to beaches, golf courses, Dartmoor National Park, and scenic walking
Exclusive Location – Elevated position near Teignmouth, Shaldon, and Newton Abbot, offering privacy and seclusion.
Environmental Sustainability – Plans include extensive landscaping, tree planting, and sustainable design features, enhancing the natural beauty of the estate.
Rare Investment Opportunity – Unique scope to create a bespoke estate or multi-dwelling development.
Property Info
Map
Floor Plan
Description
Perched high above the Teign Estuary, Higher Radway Farm is a rare and exceptional estate spanning 88.45 acres of South Devon’s finest countryside, offering breathtaking and uninterrupted views from the sea at Teignmouth along the Teign Estuary and up to Dartmoor. A truly rare opportunity to craft a spectacular home in one of South Devon’s most breathtaking settings.
Whilst the whole site is available for sale, the seller will consider selling in 3 lots. Lot 1 being the house with acreage. Lot 2 being the class Q development site and Lot 3 being the remaining land.
The Farmhouse Redevelopment
At its heart is the existing farmhouse, built in 1956. The property features an entrance hall, a kitchen, a utility room, a sitting room, a dining room, and a garden room, as well as five bedrooms, a bathroom, a shower room, landscaped gardens, and an outdoor swimming pool. Whilst the property is habitable, the approved plans allow for an exceptional contemporary dwelling.
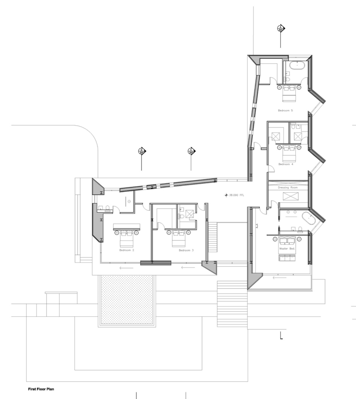
Planning permission was granted in 2020 and is in place to demolish the existing farmhouse and construct an incredible dwelling of approximately 7,631 square feet. The proposed ground floor layout is designed for both relaxation and entertaining, featuring a versatile social space with multiple areas to unwind. This includes an open-plan kitchen and dining area that flows seamlessly into an adjoining sitting room, as well as a snug, study, and playroom. A dedicated games room adds to the entertainment options, while a spacious utility room and a cloakroom provide practical convenience. Upstairs, the plans incorporate five generously sized en suite double bedrooms, including a luxurious principal suite complete with an adjoining dressing room. Four of the five bedrooms benefit from walk-in wardrobes, offering ample storage. Maximising its elevated position, the property has been thoughtfully designed to make the most of the stunning panoramic views, with much of the accommodation oriented towards the estuary.
These plans also include a separate triple garage with storage areas, and an incredible pool as well as extensive landscaping measures such as border hedgerows, tree and wildflower plantings, terracing, and a new private access road.
The plans can be accessed via the planning portal at www.teignbridge.gov.uk with planning ref: 20/00641/FUL
Agricultural Buildings Development
As well as the farmhouse there is an additional area that includes a range of farm buildings and a covered yard area, for which Class Q planning permission has been granted to convert the agricultural structures into four separate dwellings. Architectural drawings for this conversion are available along with the planning history accessible via the Teignbridge District Council portal (reference 22/01899/NPA). www.teignbridge.gov.uk
Location
The estate occupies a superb position above the Teign Estuary, providing unique panoramic views across the surrounding landscape. It is conveniently located just 1 mile from Bishopsteignton—a friendly village offering a primary school and a welcoming community atmosphere— The picturesque village of Shaldon is on the opposite side of the estuary and around 3 miles away. Shaldon exudes coastal charm with its independent shops, cafés, restaurants, and a scenic sandy beach. Teignmouth is also nearby, offering a range of amenities, sea and estuary beaches, and a traditional pier. The market town of Newton Abbot is also easily accessible. Exeter, with its rich heritage and extensive amenities, is easily accessible in around 20 minutes. Higher Radway Farm enjoys excellent transport links, including the A380 dual carriageway with direct access to the M5 motorway and convenient railway connections from Newton Abbot to London Paddington in around 2.5 hours, meaning Higher Radway Farm is an ideal location for those needing good communication links whilst enjoying a private setting with countryside, estuary and sea views.
Useful Information
- Offered freehold by private treaty with vacant possession on completion and subject to an existing Grazing Agreement on the farmland.
- Council Tax Band: Band G (£4106.10 for 2025-2026)
- Local Authority: Teignbridge District Council
- Services: mains electricity, mains water, private drainage, and oil-fired central heating.
- Planning numbers: 20/00641/FUL and 22/01899/NPA visit www.teignbridge.gov.uk
- Flood Risk: Yearly risk of flooding, Very Low
- Broadband Availability: Ultrafast available with speeds up to 1000MBPS (according to Offcom Broadband Checker)
- Mobile Phone Reception: Limited to Likely indoors on all carriers. Likely outside on all carriers (according to Offcom Broadband Checker)
- Viewings are strictly by prior appointment with the sole agents By Design – Telephone 01392 982952 or via email at southdevon@bydesignhomes.com
- EPC Exempt as planning approved for demolition.
Distances
- Teignmouth – 2 miles
- Newton Abbot – 6 miles
- Exeter – 15 miles
- Bristol – 85 miles
Leisure / International Travel
- Teignmouth Golf Course – 1 mile
- Torquay Marina – 8 miles
- Dartmoor National Park – 10 miles
- Exeter Airport – 20 miles
- Plymouth Ferryport – 40 miles
Prospective buyers are advised that the particulars provided are intended solely as a guide and that all details—including measurements and planning permissions—should be independently verified.
Higher Radway Farm represents a significant opportunity in South Devon, offering a distinctive canvas for creating a bespoke home or development that fully embraces the natural beauty and stunning views.
Property Information
Property Type
House
Property Style
Detached
Parking
Private
Floor Area
7361
Tenure Type
Freehold
Year Built
1956
Council Tax Band
G
Sewerage
Private Supply
Water
Mains
Additional Information
Heating
Oil
Electricity
Mains Supply
Broadband
FTTP




